
- النموذج: VK-SPAF
- طريقة القياس: القياس والتغذية باللولب
- نطاق الوزن: 50-500 جرام
- الدقة: 2%
- السرعة: 10-30 زجاجة/دقيقة
- الجهد: 220 فولت (قابل للتخصيص)
- القادوس: 25 لتر
- فوهات التعبئة: 10 مم (أخرى لـ 15 مم، 18 مم، 20 مم، 25 مم)
- القوة: 1.2 كيلو وات
- الوزن الإجمالي: 230/200كجم
- الحجم: 800×850×2000 مم
آلة تعبئة المسحوق هذه مصنوعة بالكامل من الفولاذ المقاوم للصدأ، ويتم تشغيل نظام التعبئة بواسطة محرك سيرفو، ويتم استخدام مخفض تايواني خالٍ من الصيانة لمحرك التحريك، ويتم تحديد خزانة المنتج على أنها مغلقة بالكامل، ويتم التحكم في ضغط الهواء بواسطة المثبط، وهي مصنوعة من الفولاذ المقاوم للصدأ والزجاج. يتم تثبيت جهاز شفط الغبار في فم أنبوب التعبئة، وهو مصمم لطاولة عمل قابلة لإعادة الاستخدام وقابلة للتعديل في الارتفاع، مع درج نفايات المنتج أسفل الطاولة.
الميزات الرئيسية لآلات تعبئة بودرة التلك للأطفال شبه الأوتوماتيكية


مصنوع من الفولاذ المقاوم للصدأ: يتكيف تمامًا مع متطلبات GMP أو شهادة صحة الأغذية الأخرى المناسبة لتعبئة المواد الكيميائية المسببة للتآكل؛
ملء استقرار أفضل ودقة وزن أعلى؛
يتم تشغيل نظام التعبئة بواسطة محرك متدرج، ودقة عالية، وعزم دوران مرتفع، وعمر تشغيل طويل، وسرعة دوران قابلة للضبط؛
يتم استخدام المخفض الخالي من الصيانة المصنوع في تايوان لمحرك التحريك: مستوى ضوضاء منخفض، عمر تشغيل طويل، خالٍ من الصيانة مدى الحياة؛
مُصممة لظروف العمل القابلة للتغيير في أي وقت؛
يمكن حفظ ما يصل إلى 10 وصفات لاستخدامها لاحقًا؛
المواد الملامسة للفولاذ هي الفولاذ المقاوم للصدأ من النوع الغذائي 304؛
خزانة المنتج مغلقة بالكامل، ويتم التحكم في ضغط الهواء الرطب وهي مصنوعة من الزجاج مع الفولاذ المقاوم للصدأ، وحركة المنتج في الخزانة واضحة للوهلة الأولى ولا يوجد تسرب للمسحوق، وجهاز استخراج الغبار المثبت في فم أنبوب التعبئة يؤدي إلى بيئة نباتية نظيفة؛
من خلال تغيير الملحقات، تكون الماكينة مناسبة لمنتجات متعددة، بغض النظر عن القوة الفائقة أو الحبوب الكبيرة.
مواصفات آلة تعبئة مسحوق التغذية بالقياس اللولبي
| نموذج | في كيه-سباف |
| طريقة القياس | قياس وتغذية المثقاب |
| نطاق الوزن | 50-500 جرام |
| دقة | 2% |
| سرعة | 10-30 زجاجة/دقيقة |
| الجهد االكهربى | 220 فولت (قابلة للتخصيص) |
| القادوس | 25 لتر |
| فوهات التعبئة | 10 مم (أخرى لـ 15 مم، 18 مم، 20 مم، 25 مم) |
| قوة | 1.2 كيلو وات |
| الوزن الإجمالي | 230/200كجم |
| مقاس | 800×850×2000 مم |
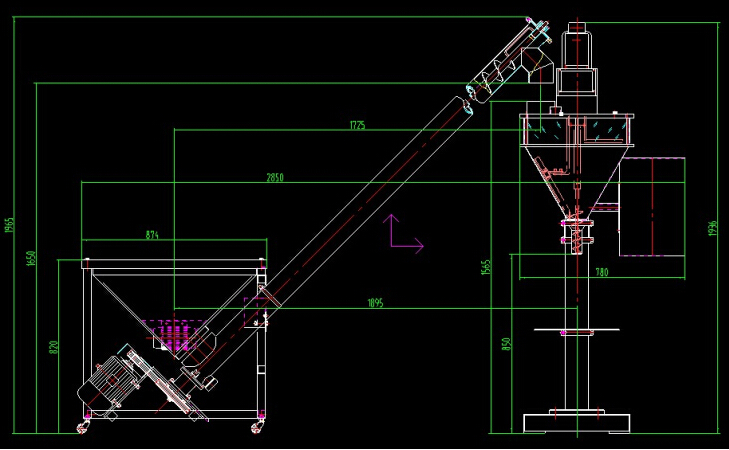
رسم توضيحي لآلة تعبئة المساحيق


تفاصيل


تحميل المواد وتغذية براغي المصعد

التركيب لتغذية المواد وتحميلها
مفتاح اتجاهين؛ دوران للأمام / عكسي على التوالي لتغذية المواد وتفريغ المواد من المخرج السفلي.
لا يمكن حجب وصلة عمود المخفض. بعد التركيب، يجب أن تكون وصلة العمود قابلة للشد ومرنة لتجنب الضرر الناتج عن الحرق الناتج عن التحميل الزائد في المحرك. أثناء التركيب، يمكن ضبط مسمار الحافة بشكل صحيح.
لا ينبغي أبدًا تثبيت نهاية دبوس المثقاب بإحكام شديد حتى لا يلامس المثقاب الدوار جدار الأنبوب بسبب ثني المثقاب. يرجى ربط الصمولة بإحكام لتثبيت الدبوس لتثبيته. في كل مرة يتم فيها سحب المثقاب للتنظيف وإعادة التثبيت، يجب مراعاة هذه النقطة.
يمكن دمج حجم وارتفاع المصعد مع آلة التعبئة عن طريق الحث التسلسلي. لا توجد مواد تغذية من المصعد بدون مواد في الخزان.
يعمل مفصل المصعد مع آلة تعبئة المسحوق، ويتم التغذية والتوقف تلقائيًا.
المعايير الفنية للمصعد

| نقل الحجم | 1 مليون3/ساعة (متكامل مع ماكينة التعبئة) |
| قادوس | 100 لتر |
| ارتفاع الرفع | 2000 مم |
| قوة المحرك | 1.5 كيلو وات |
| طاقة الامداد | 380 فولت/50-60 هرتز |
| الارتفاع بين القادوس والأرض | 800-900 ملم |
| ماركة المحرك | جولي |
| مواد القادوس | SS304، سمك 1.50 مم |
| أنبوب لنقل المواد المغذية | SS304، القطر: 103 مم، السُمك: 3.00 مم |
| مثقاب | SS304، سمك 3.00 مم |
| رمح | SS304، القطر 35 مم |
| وزن | 150كجم |
| مقاس | 1900*880*2100 مم (قابلة للتخصيص) |
يضمن: بالنسبة لجميع الآلات، تدعي الشركة أن الضمان مدته عام واحد. (لا يشمل الضمان المشكلات الناجمة عن الحوادث أو سوء الاستخدام أو سوء التطبيق أو تلف التخزين أو الإهمال أو تعديل المعدات أو مكوناتها. كما أن قطع الغيار التي يمكن كسرها بسهولة لا تشمل الضمان)
تثبيت: بعد وصول الماكينة إلى مصنعك، إذا كنت بحاجة إلى ذلك، سيذهب فنيونا إلى مكانك لتثبيت الماكينة واختبارها وتدريب العامل على تشغيل الماكينة (يعتمد وقت التدريب على العامل). يجب أن تكون النفقات (تذكرة الطيران والطعام والفندق ورسوم السفر في بلدك) على حسابك ويجب أن تدفع للفني 150 دولارًا أمريكيًا في اليوم. يمكنك أيضًا الذهاب إلى مصنعنا للتدريب.
بعد الخدمة: إذا واجهتك مشكلة في الماكينة، فسيذهب فنيونا إلى مكانك لإصلاح الماكينة في أسرع وقت ممكن. يجب أن تكون التكلفة في حسابك (كما هو موضح أعلاه).









